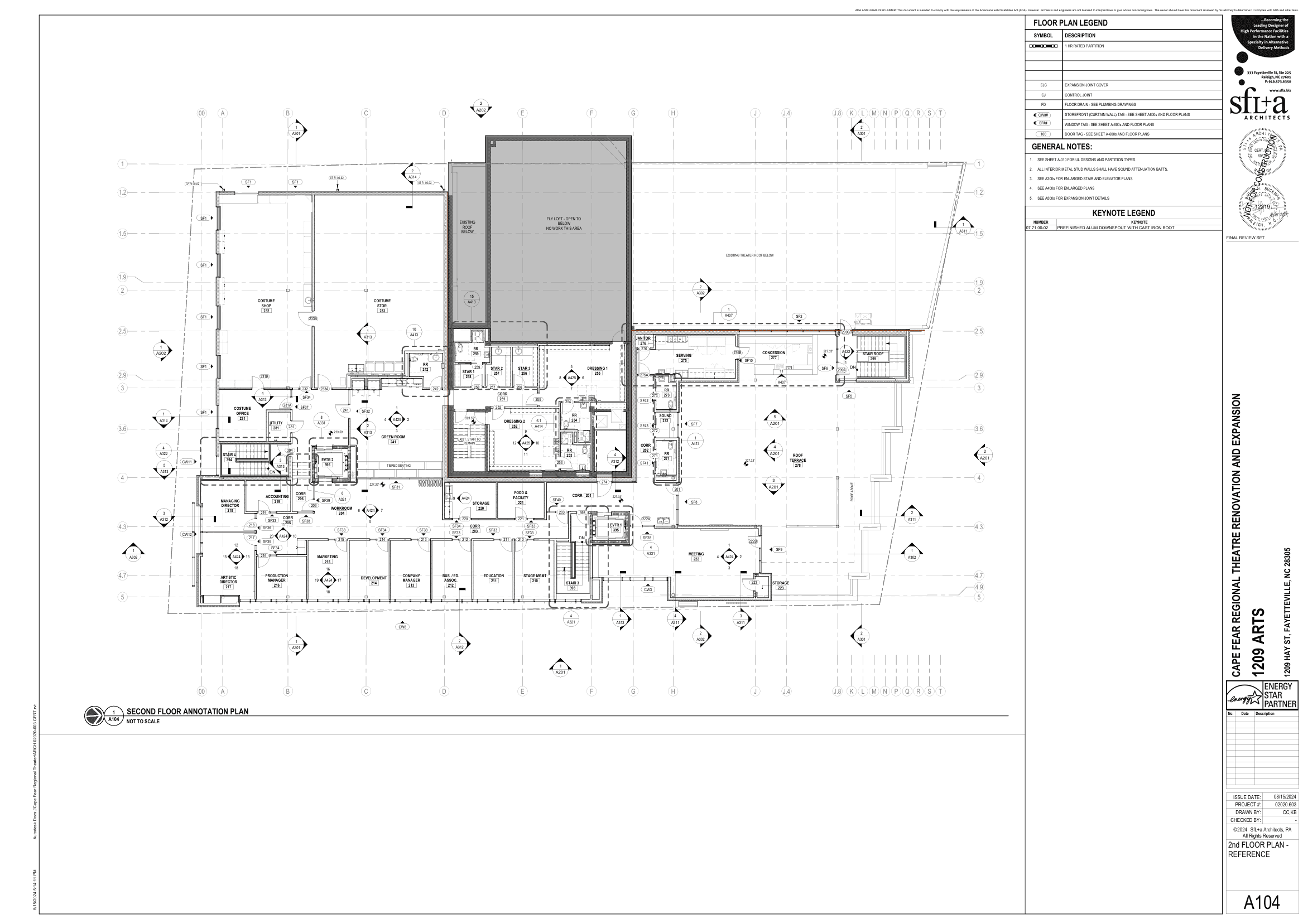
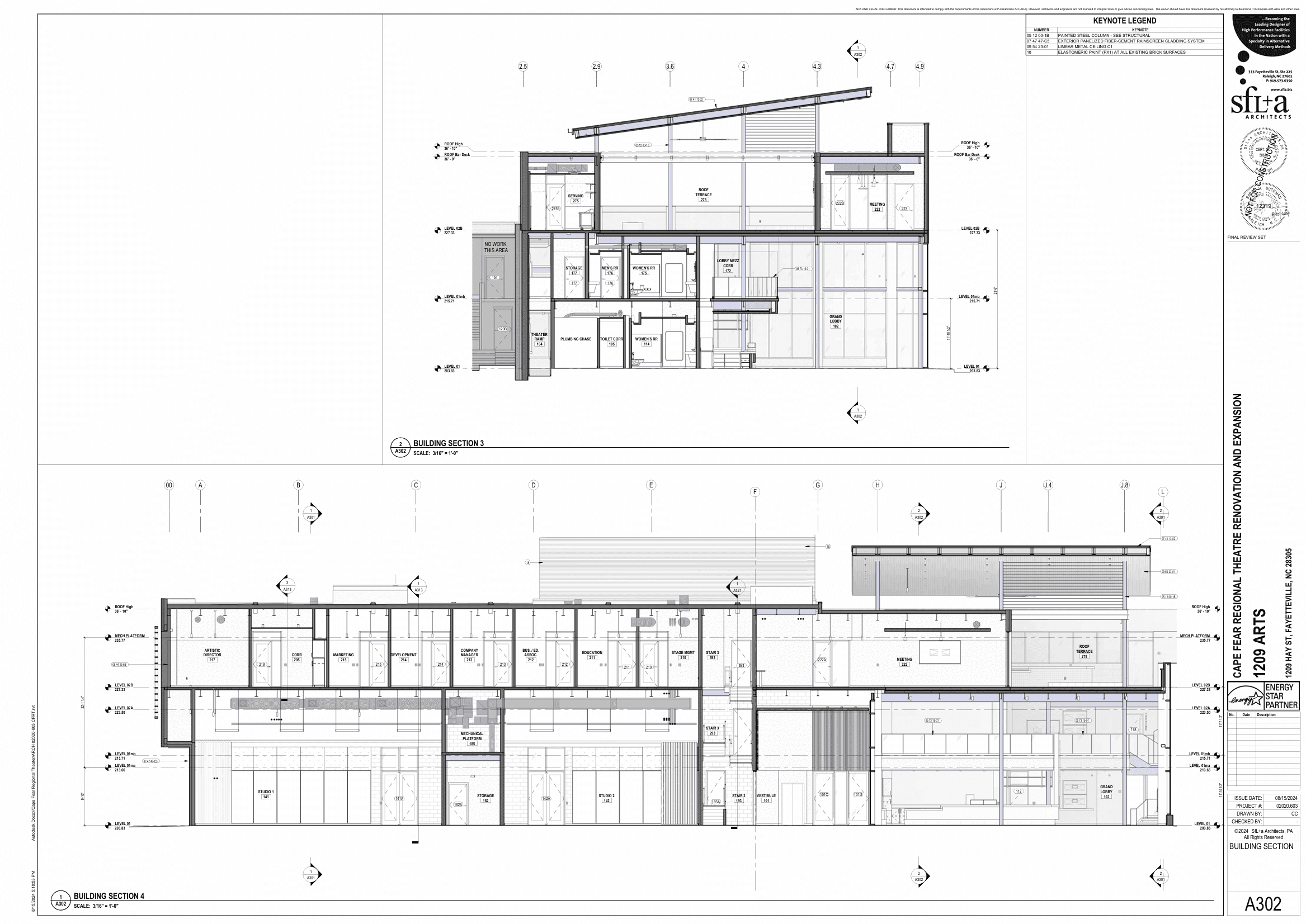
Cape Fear Regional Theater

Project overview

Theatre – Expansion, Fayetteville, NC

Addition to existing facility including meeting space, community rooms, educational spaces and lobby and rooftop food service amenities.

Details

3D field documentation BIM as-builts

Led design team from inception through execution of C.M. at risk construction contract.

Specifications

Area of site

40,000 ft2

Date

2024

Status of the project

Under construction

Tools used

Revit, Enscape, Photoshop, SketchUp, Bluebeam

My sketches